Villa H te Heerlen

Deze prachtige villa is een stijloefening in de tijd. Gelegen aan de oude Romeinse heerbaan Via Belgica en aan de voet van een Limburgs plateau van kalksteen, combineert het ontwerp enerzijds de robuustheid van de Romaanse bouwstijl met de lichtheid van het modernisme. Gebruik van de lokale kalksteen verbindt deze stijlen over de eeuwen heen.

Opdrachtgever Familie Houben Architectenbureau ARCHITECTENZAAK

Toelichting categorie

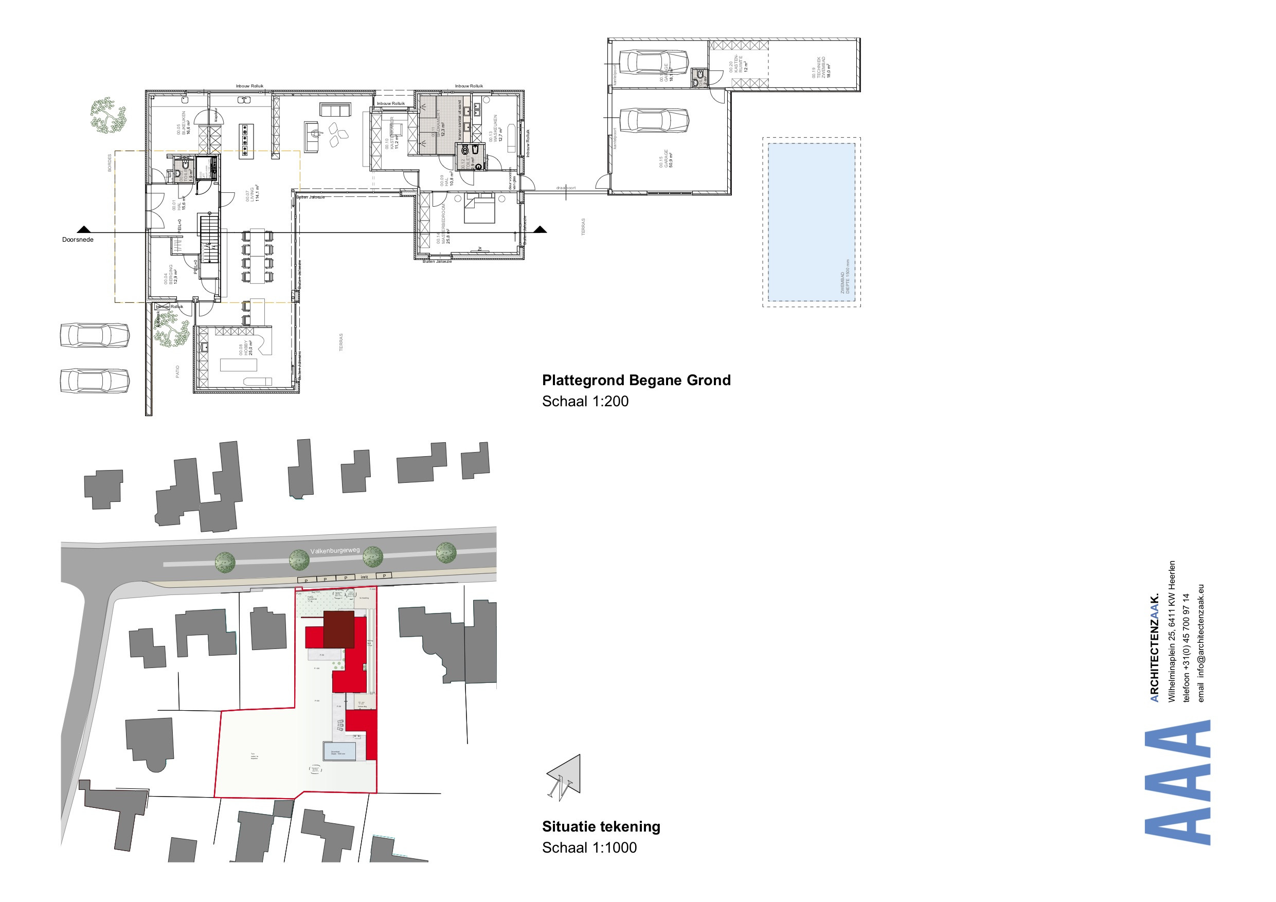
De ontworpen woning verhoogt het woongenot van de bewoners doordat het past als een maatpak qua functionaliteit en royale ruimte biedt aan persoonlijke woonwensen zoals o.a. een living met separate leefkeuken, een atelier en zwembad met poolhouse, allemaal verbonden rond een parkachtige tuin. Een uitgebreid aantal aan luxe ruimtes biedt optimale functionaliteit en woongenot zoals waskeuken, badkamers, kastenkamer, bijkeuken, hobbyruimtes, berging en verschillende gastenkamers.

De villa is volledig levensloopbestendig door het complete woonprogramma op de begane grond, een specifieke wens van de opdrachtgevers. Maar er is ook een lift in de villa om altijd op de verdieping bij de gastenkamers met eigen badkamer te kunnen komen.
De tijdloze hoogwaardige architectuur staat symbool voor de bewoners, ondernemers die een leven lang succes hebben bereikt in hun vak van resp. automobiliteit en mode.

Toelichting ontwerp

Een grote villa op een verloren stuk grond aan de rand van de binnenstad van Heerlen. De Valkenburgerweg ligt langs het authentieke tracé van de Via Belgica, de ‘Romeinse heirbaan van Boulogne naar Keulen’ de belangrijkste Romeinse heerweg in de Lage Landen. Iets verderop ligt het oudste Romeinse badhuis van Nederland, de Thermen van Heerlen. De restanten bieden een inkijk op het historische gebruik van de locale Kunradersteen.

De context bestaat uit een willekeurige collage van villa’s gebouwd vanaf de jaren 50. Door het ontbreken van samenhang kon er geen aansluiting gezocht worden binnen de aanwezige straatwanden, maar is bewust gekozen voor een tijdloze architectonische verschijningsvorm. Een abstracte vormgeving gebouwd volgens een eigen interpretatie van klassieke ordeningen, een plint, lijf en kop vormen een stevig architectonisch ensemble zonder verdere stijluitspraak. De villa ordent zo (onbedoeld) de willekeur van de afgelopen decennia.
Het ontwerp van de villa bestaat uit verschillende in-elkaar-grijpende volumes met gesloten geveloppervlakken die de villa een monumentale uitstraling verlenen. Voornaam en gesloten aan de straatzijde en speels en open aan de parkachtige tuin. De afzonderlijke volumes bieden plaats aan de diverse delen van het programma zoals living, leefkeuken, atelier, master bedroom, poolhouse, garage en een separate verdieping voor gasten.
Deze robuuste esthetische vlakken worden geboetseerd met langformaat stenen, die een slank en elegant lijnenspel in de gevel mogelijk maken en de villa tonen als een beeldhouwwerk. Vanwege de plasticiteit van het ontwerp werd een lichte gevelkleur gekozen, een kleur die ervoor zorgt dat het beeld van in-elkaar-grijpende volumes wordt versterkt door de onderlinge schaduwwerking. Doordat de ene massa een schaduw kan werpen op de andere, krijg je een sterke plastische werking met meer diepte. Schaduw komt het best naar voren op een lichte gevel.
De villa is ook letterlijk verbonden met zijn plek door inspiratie uit het Limburgse landschap te putten. Gebouwd aan de voet van het plateau van Ubachsberg, het hoogste plateau van Nederland met in de ondergrond de unieke Kunradersteen, een harde kalksteen met een kleur die varieert van licht- naar donkerbeige, witgeel, met grijze en donkere tinten. Voor de villa is samen met MBI een nieuwe gevelsteen ontwikkeld op basis van de zandmengsels uit de Kunradersteengroeve.

Gebouw specificaties
-
Categorie Particuliere Woonbeleving
Plaatsnaam project Heerlen
Functie gebouw Woongebouw
Datum van ingebruikname 01-12-2020
Bouwperiode Van 15-10-2019 tot 16-11-2020
Opdrachtgever Familie Houben
Architecten Mark L.P. Feron
Bruto vloeroppervlak 586 m²
Colofon
Architectenbureau ARCHITECTENZAAK
Fotograaf Klaus Tummers
Telefoonnummer 0457009714
Project Details

Download het volledige projectdossier met alle details en specificaties.

Download PDF